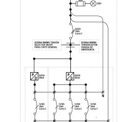
El tablero de faena metálico con parada de emergencia, es utilizado principalmente en instalaciones provisionales o de “faenas” y están destinados a suministrar energía eléctrica por un periodo de tiempo definido. Un ejemplo de su aplicación son las faenas de construcción, en las
cuales se requiere durante el período de ejecución de la obra energizar diversos sectores, para iluminar espacios, maquinarias, herramientas eléctricas, etc. En general los tableros de faena suelen ser alimentados mediante un empalme provisorio o a través de un cable alimentador.
El botón pulsador de parada de emergencia es un interruptor de control a prueba de fallas que proporciona seguridad. Una parada puede producirse en condiciones normales de funcionamiento una vez analizado el trabajo o una maniobra y en condiciones anormales de funcionamiento cuando aparece una situación de peligro, dejando el tablero sin energía.
Altura 400mm. Ancho 318mm Profundidad 200mm.






